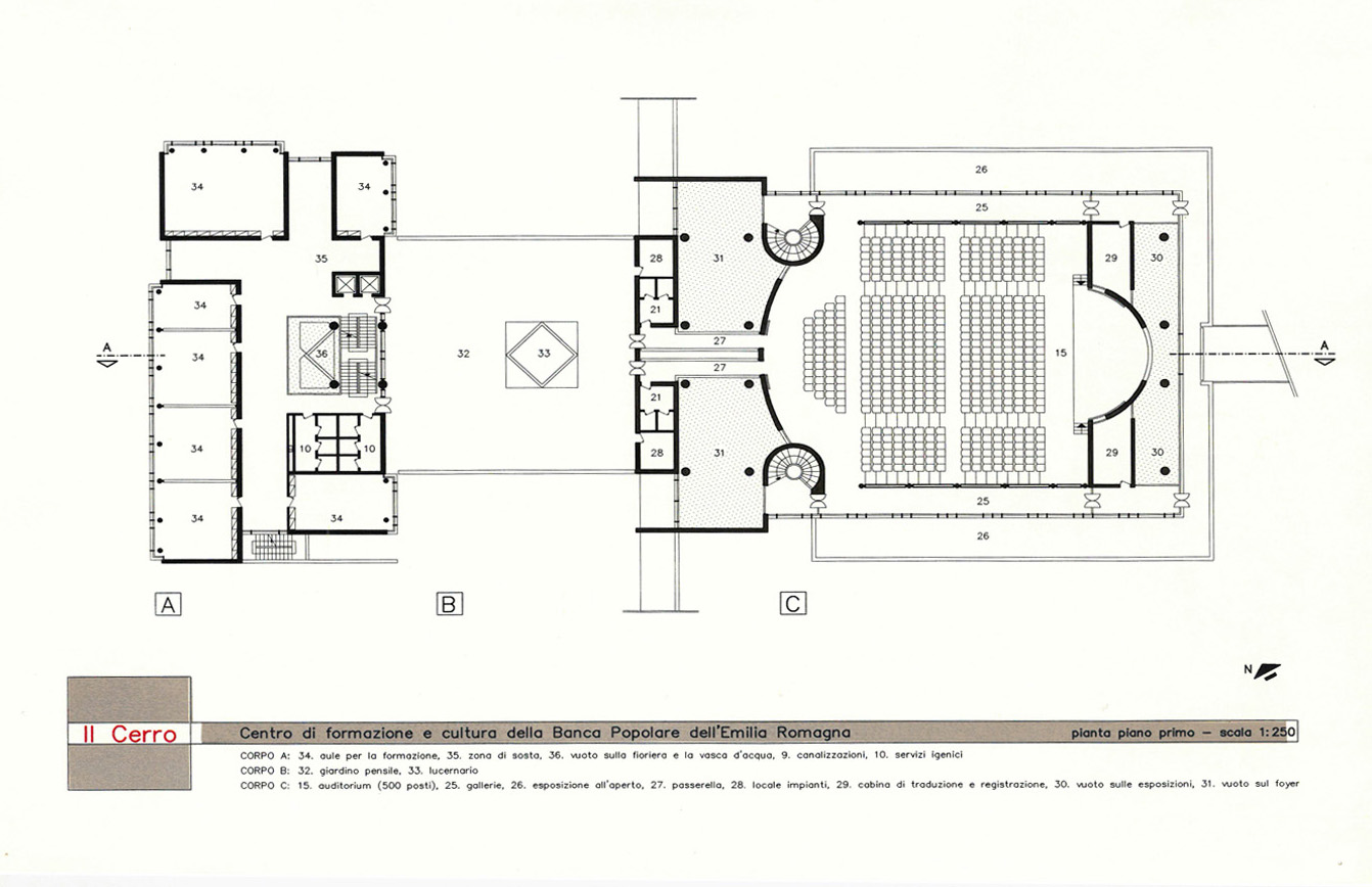
Centro di formazione e cultura della Banca Popolare dell'Emilia Romagna
proposta progettuale di concorso.
Progetto segnalato, aprile 1997.
Studio Manenti Valli
via Farini 5, 42121 Reggio Emilia
tel. 0522.451192 fax 0522.455035 manentivalli@libero.it
Questo sito usa cookie tecnici, anche di terze parti, per il proprio corretto funzionamento, per la raccolta di statistiche anonime di traffico, e per il collegamento con servizi esterni. NON è effettuata alcuna profilazione dell'utenza. Continuando la navigazione o cliccando su "OK" si autorizza questo impiego dei cookie.
OKPrivacy policy